Porte de la Chapelle

| Plan étage courant - neuf


| Plan R+1 - réhabilité


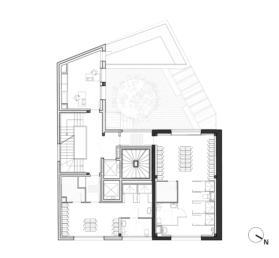
| Plan RDC - réhabilité


| Elévation rue


| Elévation rue - réemploi


| Elévation cour


| Elévation cour - réemploi


| Plan masse


Surélévation de 7 logements et réhabilitation d'un atelier municipal pour la direction de la propreté et de l'eau (DPE) de la Ville de Paris

L'ambition première du projet de restructuration est la création d'un îlot de fraîcheur, relais de biodiversité, grâce à l'espace libre dégagé en coeur de parcelle. La continuité des façades sur cour participe à la formation d'une "forteresse" minérale, au sein de laquelle prend racine un jardin accessible à l'ensemble des habitants.

La surélévation du bâtiment s'attache à proposer des logements T1, T2, T3 et T5 de qualité ; les logements sont traversants et disposent chacun d'un espace extérieur sur cour.

Le projet est attentif à la valorisation du "déjà-là " en conservant la totalité des bâtiments existants, complétés par des éléments de réemploi choisis avec soin, in-situ ou issus de gisements extérieurs.


LIEU : rue des Pyrénées, Paris 20, France

PROGRAMME : Réalisation de 7 logements et d'un atelier municipal.

MAITRISE D’OUVRAGE : PARISEM

MAITRISE D'OEUVRE : CSA (architecte mandataire) + VCA (architecte associé)

SDP :  949 m²

COUT : 2.4M€ HT

STATUT : Concours rendu en 2023 - concours reporté

ENVIRONNEMENT : RE2020, Plan Climat Paris, PLU bioclimatique de la ville de Paris, Certification NF Habitat HQE Ville de Paris